Venta
Terreno
Vandellòs i l Hospitalet de l Infant
299.000€
Impuestos y gastos
Vandellos Vandellos
M²
4189
Estado conservación
De nueva construcció
Cód. Postal
43891
Referencia : AV20245
Visitas a este inmueble:
Contactar con el anunciante
FINCAS LEÓN INDUSTRIAL
Característica
0
0
Terreno
estado
Con 4189m² construidos
Descripción:
Terreno con 4189m² estado, ...
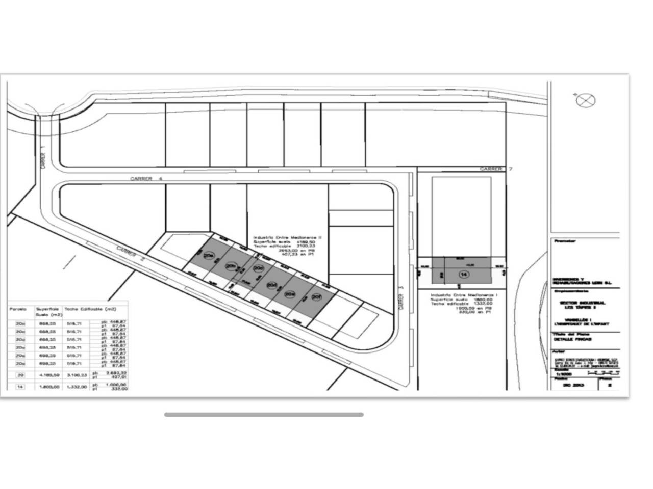
SOLAR INDUSTRIAL EN VENTA HOSPITALET DE LINFANT POL. IND. LES TAPIES II.Solar industrial en venta en Hospitalet de lInfant, ubicado estratégicamente junto a la salida 38 de la Autopista del Mediterráneo, una de las principales arterias logísticas del corredor mediterráneo. Esta ubicación ofrece una excelente conexión para el transporte de mercancías y facilita el acceso tanto a proveedores como a clientes, algo especialmente valorado por empresas industriales, logísticas y comerciales.El terreno cuenta con una superficie total de 4.189,50 m, lo que permite desarrollar un proyecto empresarial de gran capacidad. La edificabilidad total es de 3.100 m, distribuida en dos plantas, lo que proporciona una buena combinación entre espacio operativo y área administrativa.La edificabilidad se distribuye de la siguiente maneraPlanta baja de 2.693 m, ideal para zonas de producción, almacenamiento, logística, talleres o espacios operativos.Planta primera de 407,23 m, perfecta para oficinas, salas de reuniones, departamentos técnicos o administrativos.Además, este solar ofrece una interesante posibilidad de desarrollo para inversores o promotores industriales, ya que permite dividir la parcela en hasta 6 naves industriales independientes. Cada una de ellas podría contar con las siguientes características aproximadasSuperficie de suelo por nave 698,25 mTecho edificable hasta 516,71 m distribuidos en dos plantasPlanta baja de 448,87 m, destinada a actividad productiva, almacén o logística.Planta primera de 67,84 m, pensada para oficinas, despachos o zonas de gestión.Esta configuración permite desarrollar un pequeño parque de naves industriales, ideal para empresas que buscan espacios modernos y bien comunicados, o para inversores interesados en promoción y posterior alquiler o venta de naves industriales.Otro de los puntos fuertes de la parcela es que el solar es completamente plano, lo que simplifica el proceso de construcción, reduce costes de urbanización y facilita la planificación de accesos, zonas de maniobra, aparcamientos y áreas de carga y descarga para vehículos industriales.El terreno se encuentra en el polígono industrial Les Tapies II, un área empresarial en plena expansión y desarrollo. En los últimos años, diversas empresas y servicios se han instalado en el polígono, incluyendo supermercados, hoteles, gasolineras, centros deportivos y diferentes actividades industriales y comerciales, consolidando la zona como un nuevo núcleo de actividad económica.Su excelente ubicación lo convierte en un emplazamiento especialmente atractivo para empresas industriales, logísticas, de distribución o servicios, que buscan visibilidad, accesos rápidos y proximidad a los principales corredores de transporte.El solar se encuentra aproximadamente a45 km de Tarragona126 km de Barcelona200 km de ValenciaEsta posición estratégica dentro del eje mediterráneo permite a las empresas operar con eficiencia en uno de los corredores económicos más importantes del país, optimizando tiempos de transporte y facilitando la distribución de productos.En definitiva, se trata de una excelente oportunidad para empresarios, promotores e inversores industriales que buscan un suelo con buena edificabilidad, gran superficie y posibilidades de desarrollo, dentro de un polígono industrial en crecimiento y con una ubicación privilegiada para cualquier tipo de actividad empresarial.
SOLAR INDUSTRIAL EN VENTA HOSPITALET DE LINFANT POL. IND. LES TAPIES II.Solar industrial en venta en Hospitalet de lInfant, ubicado estratégicamente junto a la salida 38 de la Autopista del Mediterráneo, una de las principales arterias logísticas del corredor mediterráneo. Esta ubicación ofrece una excelente conexión para el transporte de mercancías y facilita el acceso tanto a proveedores como a clientes, algo especialmente valorado por empresas industriales, logísticas y comerciales.El terreno cuenta con una superficie total de 4.189,50 m, lo que permite desarrollar un proyecto empresarial de gran capacidad. La edificabilidad total es de 3.100 m, distribuida en dos plantas, lo que proporciona una buena combinación entre espacio operativo y área administrativa.La edificabilidad se distribuye de la siguiente maneraPlanta baja de 2.693 m, ideal para zonas de producción, almacenamiento, logística, talleres o espacios operativos.Planta primera de 407,23 m, perfecta para oficinas, salas de reuniones, departamentos técnicos o administrativos.Además, este solar ofrece una interesante posibilidad de desarrollo para inversores o promotores industriales, ya que permite dividir la parcela en hasta 6 naves industriales independientes. Cada una de ellas podría contar con las siguientes características aproximadasSuperficie de suelo por nave 698,25 mTecho edificable hasta 516,71 m distribuidos en dos plantasPlanta baja de 448,87 m, destinada a actividad productiva, almacén o logística.Planta primera de 67,84 m, pensada para oficinas, despachos o zonas de gestión.Esta configuración permite desarrollar un pequeño parque de naves industriales, ideal para empresas que buscan espacios modernos y bien comunicados, o para inversores interesados en promoción y posterior alquiler o venta de naves industriales.Otro de los puntos fuertes de la parcela es que el solar es completamente plano, lo que simplifica el proceso de construcción, reduce costes de urbanización y facilita la planificación de accesos, zonas de maniobra, aparcamientos y áreas de carga y descarga para vehículos industriales.El terreno se encuentra en el polígono industrial Les Tapies II, un área empresarial en plena expansión y desarrollo. En los últimos años, diversas empresas y servicios se han instalado en el polígono, incluyendo supermercados, hoteles, gasolineras, centros deportivos y diferentes actividades industriales y comerciales, consolidando la zona como un nuevo núcleo de actividad económica.Su excelente ubicación lo convierte en un emplazamiento especialmente atractivo para empresas industriales, logísticas, de distribución o servicios, que buscan visibilidad, accesos rápidos y proximidad a los principales corredores de transporte.El solar se encuentra aproximadamente a45 km de Tarragona126 km de Barcelona200 km de ValenciaEsta posición estratégica dentro del eje mediterráneo permite a las empresas operar con eficiencia en uno de los corredores económicos más importantes del país, optimizando tiempos de transporte y facilitando la distribución de productos.En definitiva, se trata de una excelente oportunidad para empresarios, promotores e inversores industriales que buscan un suelo con buena edificabilidad, gran superficie y posibilidades de desarrollo, dentro de un polígono industrial en crecimiento y con una ubicación privilegiada para cualquier tipo de actividad empresarial.



