Venta
Terreno
Castro Urdiales
921.200€
Impuestos y gastos pueden no estar incluidos
Brazomar
M²
25649
Estado conservación
De 2 mano
Cód. Postal
39700
Referencia : 137924
Visitas a este inmueble:
Contactar con el anunciante
JT Gestión Inmobiliaria
Característica


Terreno
estado
Con 25649m² construidos
Descripción: Terreno con 25649m² estado, ...
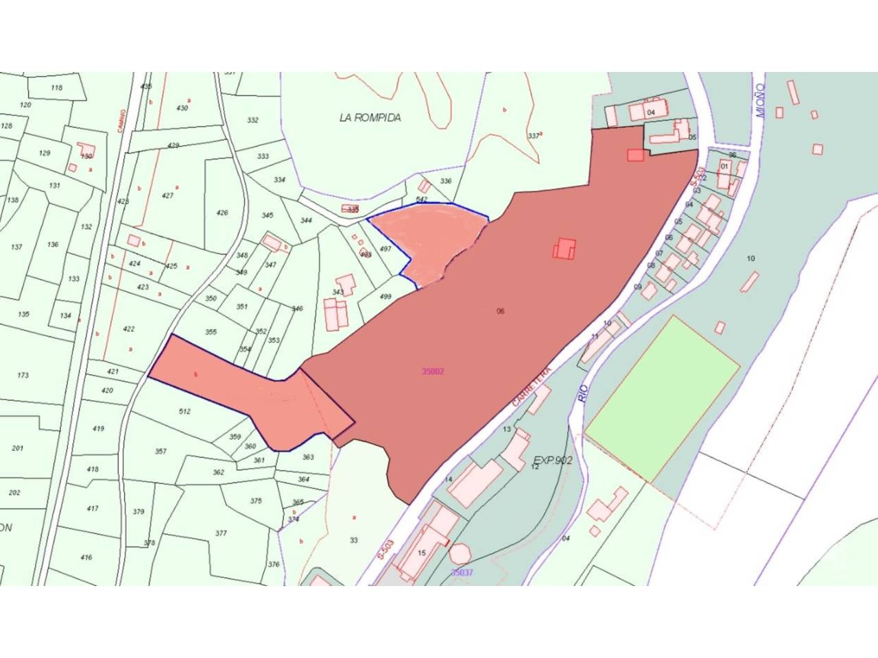
Terreno en venta en Brazomar39700.Finca que se encuentra clasificada parte en suelo Urbano No Consolidado, 25.649 m y parte en suelo rústico 9.180m, Tiene una edificabilidad de 7.740,95 mc para un total un número aproximado de 38 viviendas unifamiliares.Ref. catastral3500206VP8030S0001HG
Terreno en venta en Brazomar39700.Finca que se encuentra clasificada parte en suelo Urbano No Consolidado, 25.649 m y parte en suelo rústico 9.180m, Tiene una edificabilidad de 7.740,95 mc para un total un número aproximado de 38 viviendas unifamiliares.Ref. catastral3500206VP8030S0001HG