Venta
Obra Nueva
Cambrils
238.875€
Impuestos y gastos pueden no estar incluidos
Port_Horta de Santa Maria Port_Horta de Santa Maria
M²
65
Dormitorios
2
Baños
2
Referencia : 000219
Visitas a este inmueble:
Contactar con el anunciante
FUTUR FAMILY
Característica
2
2
Sí
Obra Nueva
estado
Con 65m² construidos
Descripción: Obra Nueva con 65m²construidos, 2 dormitorios, 2 baños, estado, con ascensor, ...
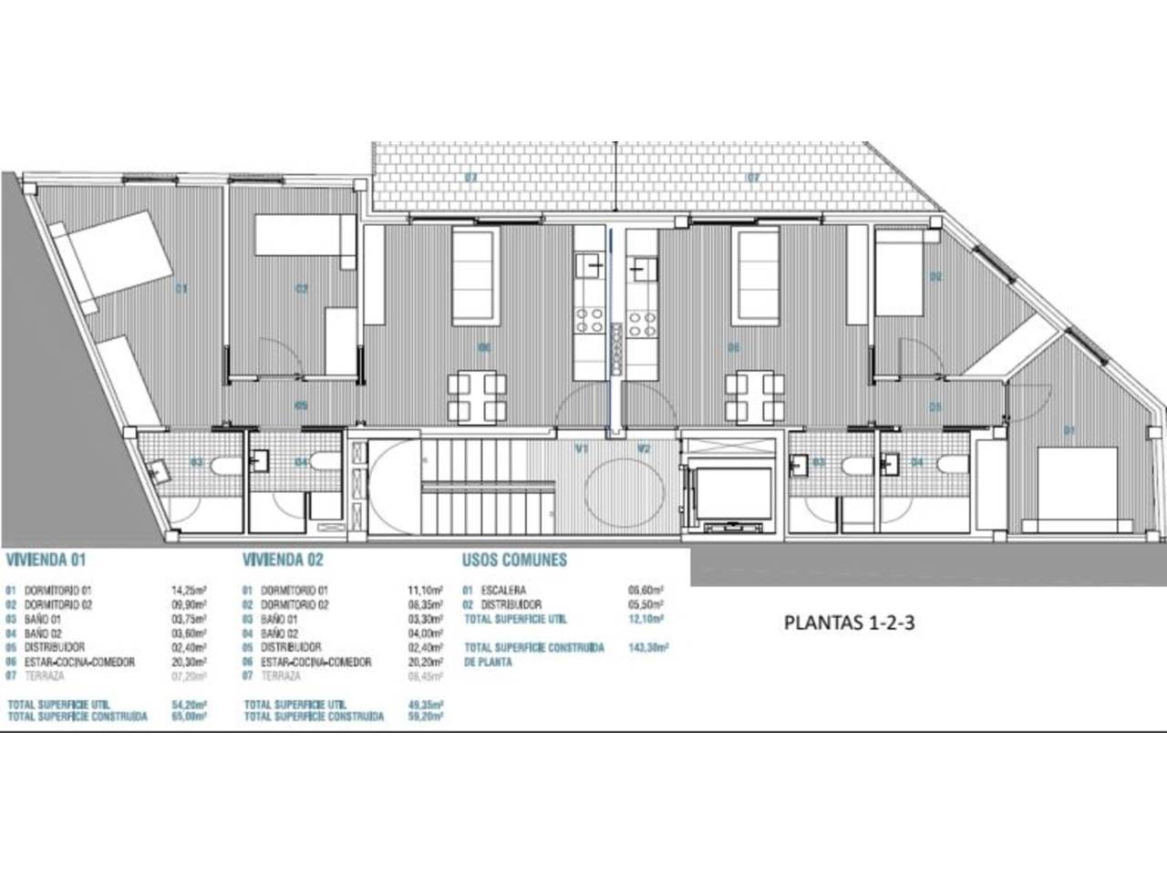
Promocion en venta en Port-Horta de Santa Maria.Altura piso 3, promoción superficie total 65 m, superficie útil 54 m, hab. individuales 1, habitaciones dobles 1, 2 baños, aire acondicionado frío y calor, calefacción central, carpintería exterior aluminio, cocina, comedor, estado conservación a estrenar, n de pta. 1, orientación sureste, suelos gres.
Promocion en venta en Port-Horta de Santa Maria.Altura piso 3, promoción superficie total 65 m, superficie útil 54 m, hab. individuales 1, habitaciones dobles 1, 2 baños, aire acondicionado frío y calor, calefacción central, carpintería exterior aluminio, cocina, comedor, estado conservación a estrenar, n de pta. 1, orientación sureste, suelos gres.



