Venta
Local
Lalín
60.000€
Impuestos y gastos pueden no estar incluidos
Lalín Lalín
M²
115
Estado conservación
De nueva construcció
Cód. Postal
36500
Referencia : 001477
Visitas a este inmueble:
Contactar con el anunciante
INVERDEZA
Característica
0
0
Local
estado
Con 115m² construidos
Descripción: Local con 115m²construidos, estado, ...
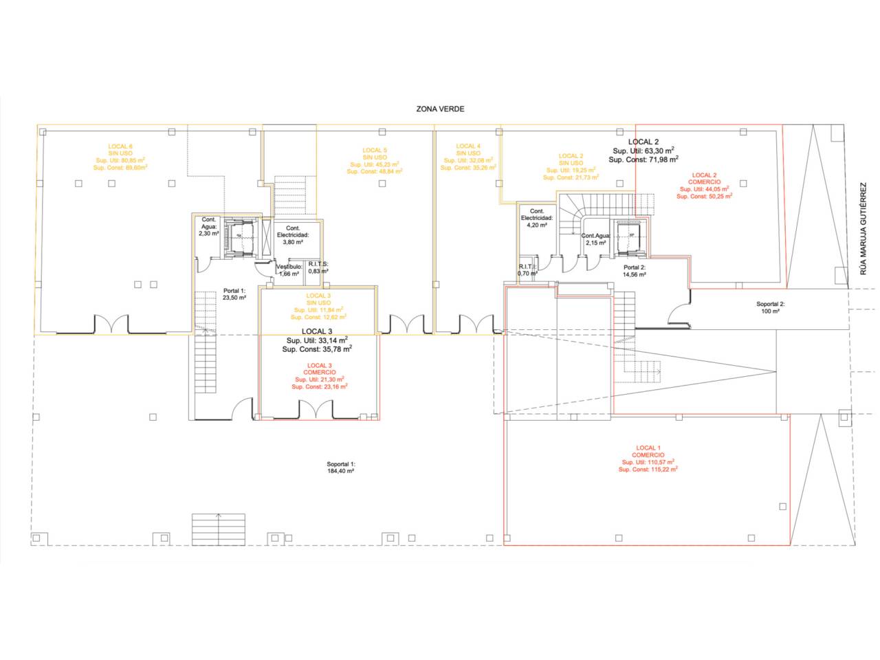
Venta de local comercial en Lalín.Se vende este local comercial en Lalín con una superficie total de 115m, siendo la superficie útil de 110m. Se encuentra en la pta. baja, lo que lo hace muy accesible. Además, es un local exterior que permite una buena visibilidad desde el exterior. Hace esquina entre las calles Nuno Eanes de Cercio y Maruja Gutierrez, en el plano marcado como local 1. Situado a escasos metros del colegio público Manuel Rivero. Si estás buscando un espacio para iniciar tu negocio en Lalín, esta es una excelente oportunidad. No dudes en contactar para más información.
Venta de local comercial en Lalín.Se vende este local comercial en Lalín con una superficie total de 115m, siendo la superficie útil de 110m. Se encuentra en la pta. baja, lo que lo hace muy accesible. Además, es un local exterior que permite una buena visibilidad desde el exterior. Hace esquina entre las calles Nuno Eanes de Cercio y Maruja Gutierrez, en el plano marcado como local 1. Situado a escasos metros del colegio público Manuel Rivero. Si estás buscando un espacio para iniciar tu negocio en Lalín, esta es una excelente oportunidad. No dudes en contactar para más información.



