Venta
Casa
Mont-Roig del Camp
252.000€
Impuestos y gastos
Miami Platja
M²
90
Dormitorios
2
Baños
2
Referencia : 600.26
Visitas a este inmueble:
Contactar con el anunciante
GRUP GIRASOL
Característica
2
2
Casa
estado
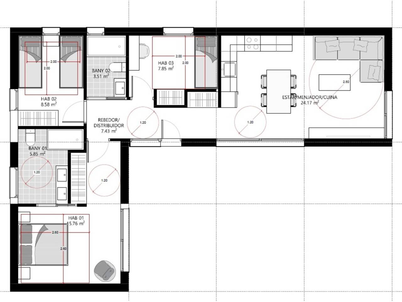
Con 90m² construidos
Descripción:
Casa con 90m²construidos, 2 dormitorios, 2 baños, estado, ...
Tu casa de diseño lista en 5 meses y sin sorpresas.LEER BIEN Descubre una nueva forma de construir tu vivienda con GRUP GIRASOL arquitectura contemporánea, fabricación industrializada y entrega llave en mano con precio cerrado. Olvídate de obras interminables, sobrecostes e imprevistos. Diseñamos y fabricamos tu casa en nuestras instalaciones y la implantamos en tu parcela en un solo día, con un plazo aproximado de 5 meses desde el inicio de fabricación.Este modelo es completamente personalizable en distribución y diseño. El precio incluye todo lo necesario para entrar a vivir proyecto básico y ejecutivo realizado por nuestros arquitectos, dirección de obra, gestión de licencias, construcción modular con estructura de acero y hormigón, transporte e implantación. La vivienda se entrega completamente terminada con climatización por aerotermia, ventilación con recuperador de calor, cocina equipada con electrodomésticos BOSCH, baños completos, armarios empotrados a medida, pavimentos porcelánicos de gran formato, carpinterías de altas prestaciones e iluminación LED integrada.Construimos viviendas permanentes, eficientes y con cumplimiento íntegro del Código Técnico de la Edificación. Diseño, calidad y control total del proceso con un único interlocutor. Precio desde 252.000.Si ya tienes parcela o estás pensando en adquirirla, contacta con nosotros y te asesoramos sin compromiso.Para más información y otras tipologías de casa www.grupgirasol.com
Tu casa de diseño lista en 5 meses y sin sorpresas.LEER BIEN Descubre una nueva forma de construir tu vivienda con GRUP GIRASOL arquitectura contemporánea, fabricación industrializada y entrega llave en mano con precio cerrado. Olvídate de obras interminables, sobrecostes e imprevistos. Diseñamos y fabricamos tu casa en nuestras instalaciones y la implantamos en tu parcela en un solo día, con un plazo aproximado de 5 meses desde el inicio de fabricación.Este modelo es completamente personalizable en distribución y diseño. El precio incluye todo lo necesario para entrar a vivir proyecto básico y ejecutivo realizado por nuestros arquitectos, dirección de obra, gestión de licencias, construcción modular con estructura de acero y hormigón, transporte e implantación. La vivienda se entrega completamente terminada con climatización por aerotermia, ventilación con recuperador de calor, cocina equipada con electrodomésticos BOSCH, baños completos, armarios empotrados a medida, pavimentos porcelánicos de gran formato, carpinterías de altas prestaciones e iluminación LED integrada.Construimos viviendas permanentes, eficientes y con cumplimiento íntegro del Código Técnico de la Edificación. Diseño, calidad y control total del proceso con un único interlocutor. Precio desde 252.000.Si ya tienes parcela o estás pensando en adquirirla, contacta con nosotros y te asesoramos sin compromiso.Para más información y otras tipologías de casa www.grupgirasol.com



