Alquiler
Nave
Sabadell
4.500€
Eixample_Sant Oleguer
M²
1134
Estado conservación
De 2 mano
Cód. Postal
08203
Referencia : 011564
Visitas a este inmueble:
Contactar con el anunciante
FINCAMPS, AICAT NUM. 212
Característica
0
0
Nave
estado
Con 1134m² construidos
Descripción:
Nave con 1134m²construidos, estado, ...
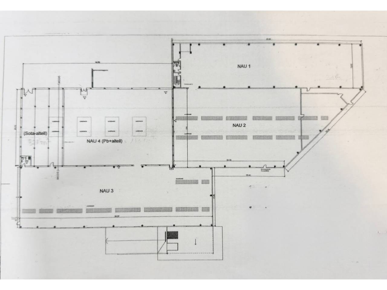
Nave industrial en alquiler en Sabadell.Fincamps comercializa impresionante nave de 1.134m en Sabadell.La nave tiene unas dimensiones de 46 m de anchura por 24 m de profundidad aproximadamente con una excepcional altura de 7 m , dispone también de un altillo de 321 m.Posibilidad de añadir dos naves mas con un espacio total de 4.289m Usos permitidos -Industrial-Servicios-Almacén.No deje pasar la oportunidad de ver esta espectacular nave en Sabadell Solicite una visita sin compromiso .
Nave industrial en alquiler en Sabadell.Fincamps comercializa impresionante nave de 1.134m en Sabadell.La nave tiene unas dimensiones de 46 m de anchura por 24 m de profundidad aproximadamente con una excepcional altura de 7 m , dispone también de un altillo de 321 m.Posibilidad de añadir dos naves mas con un espacio total de 4.289m Usos permitidos -Industrial-Servicios-Almacén.No deje pasar la oportunidad de ver esta espectacular nave en Sabadell Solicite una visita sin compromiso .



