Alquiler
Nave
Polinya
45.000€
Polinya Polinya
M²
7234
Estado conservación
De 2 mano
Cód. Postal
08213
Referencia : 13448770
Visitas a este inmueble:
Contactar con el anunciante
MAF INMUEBLES
Característica
0
0
Nave
estado
Con 7234m² construidos
Descripción:
Nave con 7234m²construidos, estado, ...
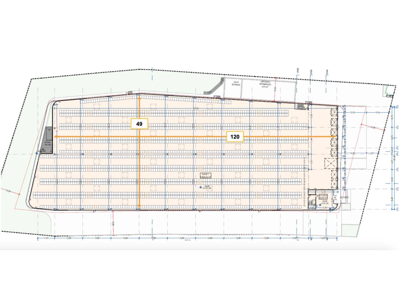
Nave logística en alquiler de nueva construcción en Polinya - Barcelona - Junto Autopista AP-7.Nave industrial logística en alquiler, de nueva construcción, situada en el polígono industrial Llevant, de Polinya. Dispone de excelentes conexiones con la Autopista AP-7 y Autovía C-17. La nave tiene 5.930 m2 en pta. baja, 652 m2 en pta. primera y 652 m2 en pta. segunda. Total 7.234 m2. Parcela de 10.620 m2. Nave nueva con estructura de hormigón, cerramientos en panel prefabricado de hormigón, altura libre de 12 metros, diáfana, 7 muelles de carga 5 para TIR y 2 para furgonetas, 1 rampa de acceso, instalación de iluminación Led, sistema contraincendios mediante BIES, detectores, sprinklers-rociadores y exutorios. Patios privados y vallados. Excelente imagen corporativa. Disponibilidad Inmediata.
Nave logística en alquiler de nueva construcción en Polinya - Barcelona - Junto Autopista AP-7.Nave industrial logística en alquiler, de nueva construcción, situada en el polígono industrial Llevant, de Polinya. Dispone de excelentes conexiones con la Autopista AP-7 y Autovía C-17. La nave tiene 5.930 m2 en pta. baja, 652 m2 en pta. primera y 652 m2 en pta. segunda. Total 7.234 m2. Parcela de 10.620 m2. Nave nueva con estructura de hormigón, cerramientos en panel prefabricado de hormigón, altura libre de 12 metros, diáfana, 7 muelles de carga 5 para TIR y 2 para furgonetas, 1 rampa de acceso, instalación de iluminación Led, sistema contraincendios mediante BIES, detectores, sprinklers-rociadores y exutorios. Patios privados y vallados. Excelente imagen corporativa. Disponibilidad Inmediata.



