Alquiler
Nave
Canovelles
9.618€
Canovelles Canovelles
M²
1983
Estado conservación
De 2 mano
Cód. Postal
08420
Referencia : AA20265
Visitas a este inmueble:
Contactar con el anunciante
FINCAS LEÓN INDUSTRIAL
Característica
0
0
Nave
estado
Con 1983m² construidos
Descripción:
Nave con 1983m²construidos, estado, ...
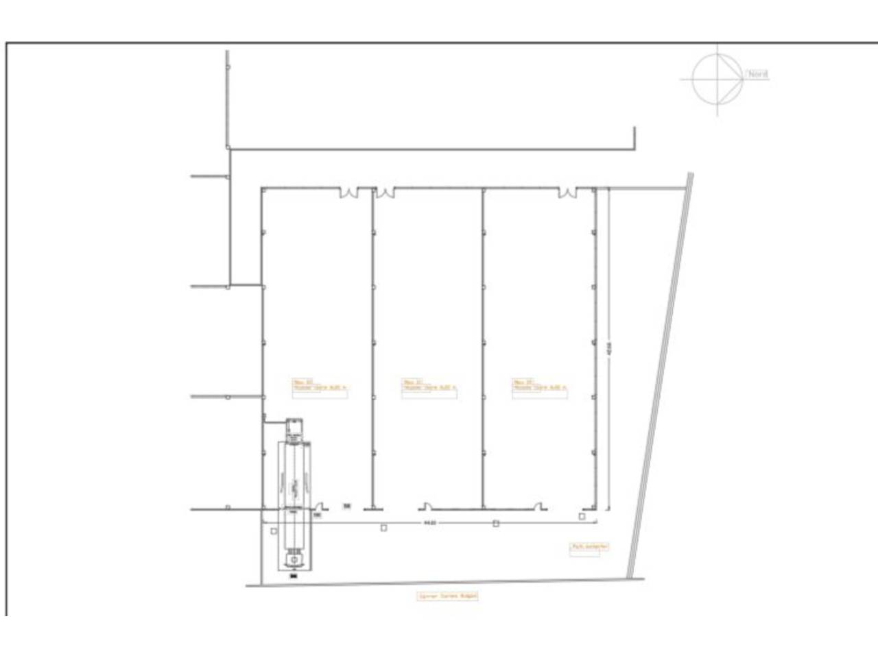
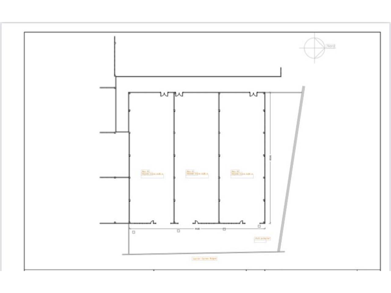
Nave Industrial de 1.983 m2 en alquiler.Nave Industrial de 1983 m2 en alquiler.Con un estado de conservación perfecto y sectorizada en 3 partes- Primera superficie de 659 m2- segunda superficie de 654 m2- tercera superficie 670 m2.En el caso de alquilar los 1983 m2 se podría disponer de un patio lateral de 816 m2.Sus 3 Puertas TIR la hacen una nave idónea para actividades de almacén ó para actividades con mucha afluencia de entrada y salida de vehículos.Cubierta completamente nueva.1 Muelle de carga y descarga.Polígono consolidado y muy bien comunicado.
Nave Industrial de 1.983 m2 en alquiler.Nave Industrial de 1983 m2 en alquiler.Con un estado de conservación perfecto y sectorizada en 3 partes- Primera superficie de 659 m2- segunda superficie de 654 m2- tercera superficie 670 m2.En el caso de alquilar los 1983 m2 se podría disponer de un patio lateral de 816 m2.Sus 3 Puertas TIR la hacen una nave idónea para actividades de almacén ó para actividades con mucha afluencia de entrada y salida de vehículos.Cubierta completamente nueva.1 Muelle de carga y descarga.Polígono consolidado y muy bien comunicado.



